AZielińska - nieruchomości Poznań, mieszkania, domy działki, w Poznaniu
AZielińska Nieruchomości
+48 501 220 030 +48 667 335 198

+48 501 873 387 +48 665 554 415

+48 511 893 075 Google Maps
+48 501 220 030 biuro@az.poznan.pl
Okrężna, szamotulski
170 000 / 200 zł / m2
Typ oferty DZIAŁKI - SPRZEDAŻ
Numer oferty 57340
Województwo wielkopolskie
Gmina szamotulski
Miasto Bytyń
Ulica Okrężna
Cena sprzedaży 170 000 zł
Powierzchnia 850 m2
Typ działki budowlana
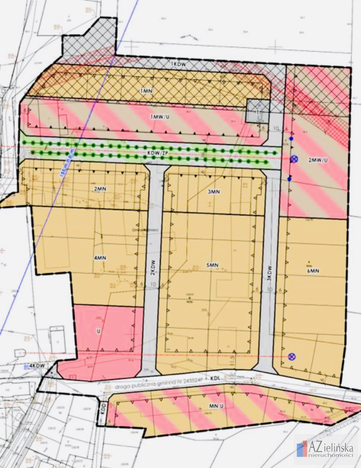
Opis Polecam do sprzedaży ładne działki budowlane pod zabudowę jednorodzinne oraz działki wielorodzinne i pod inwestycje deweloperską położone na zachód od Poznania nad jeziorem Bytyńskim w miejscowości Bytyń o powierzchni od 600m2 do 1200 m2 wydzielonej z większej parceli zgodnie z miejscowym planem zagospodarowania przestrzennego. Idealna pod budowy domów jednorodzinnych i wielorodzinnych oraz rekreacyjnych , dzięki oddaleniu od głównych dróg komunikacyjnych w okolicy panuje spokój, co w połączeniu z dostępem do niezbędnej infrastruktury i pobliskich miejscowości Kaźmierz i Tarnowo Podgórne stanowi niewątpliwie atut tej lokalizacji. Teren jest w trakcie porządkowania i przygotowany pod zabudowę.

Jest to także świetna okolica dla osób ceniących sobie spokój i aktywny wypoczynek.

Okolica bogata w atrakcje turystyczne ,zabytki, walory przyrodnicze i historyczno-krajobrazowe.

Ponadto liczne szlaki , wycieczkowe, rowerowe i piesze.

Dojazd jest drogą publiczną - droga gminna.

Odległość od Poznania Centrum : 30km

Tarnowo Podgórne 10km

Kaźmierz 9km . Doskonały i szybki dojazd do Poznania, drogą krajową 92

oraz dojazd do zjazdu na autostradę A2.

Media- pełne uzbrojenie.. Więcej informacji udzielam telefonicznie. Oferta godna polecenia.

Kontakt. Ireneusz Molenda tel. 665-55-44-15

(Odpowiedzialność zawodowa licencja nr 2554)

Zapewniamy bezpieczeństwo transakcji oraz kompleksową obsługę kredytową.

Zdjęcia nieruchomości

Lokalizacja nieruchomości

Kupując z pośrednikiem: kupujesz bezpiecznie z ubezpieczeniem OC od

transakcji.

SERDECZNIE ZAPRASZAM NA PREZENTACJE! .

Dodatkowe informacje o transakcji udzielamy przez telefon 665 554 415

Oferta Realizowana Przez:

Ireneusz Molenda Nieruchomości

Żegockiego 11/5, 61-693 Poznań

Współpracujemy z:

-Geodetami

-Doświadczonym biurem doradztwa kredytowego (usługa dla Państwa jest

bezpłatna)

-Kancelarią notarialną, która dla naszych klientów udziela zniżek.

Agent prowadzący Ireneusz Molenda

- Zapewniamy bezpieczeństwo transakcji oraz obsługę kredytową.

- Powyższy opis ma charakter informacyjny i nie stanowi oferty w rozumieniu

przepisów kodeksu cywilnego.

- Informacje umieszczone w ofercie przekazane są przez właścicieli

nieruchomości i mogą ulegać zmianom.

- Staramy się aby wszystkie oferty odpowiadały stanowi rzeczywistemu.

Typ działki budowlana
Typ oferty
DZIAŁKI - SPRZEDAŻ
Numer oferty
57340
Województwo
wielkopolskie
Gmina
szamotulski
Miasto
Bytyń
Ulica
Okrężna
Cena sprzedaży
170 000 zł
Powierzchnia
850 m2
Typ działki
budowlana
Opis
Polecam do sprzedaży ładne działki budowlane pod zabudowę jednorodzinne oraz działki wielorodzinne i pod inwestycje deweloperską położone na zachód od Poznania nad jeziorem Bytyńskim w miejscowości Bytyń o powierzchni od 600m2 do 1200 m2 wydzielonej z większej parceli zgodnie z miejscowym planem zagospodarowania przestrzennego. Idealna pod budowy domów jednorodzinnych i wielorodzinnych oraz rekreacyjnych , dzięki oddaleniu od głównych dróg komunikacyjnych w okolicy panuje spokój, co w połączeniu z dostępem do niezbędnej infrastruktury i pobliskich miejscowości Kaźmierz i Tarnowo Podgórne stanowi niewątpliwie atut tej lokalizacji. Teren jest w trakcie porządkowania i przygotowany pod zabudowę.

Jest to także świetna okolica dla osób ceniących sobie spokój i aktywny wypoczynek.

Okolica bogata w atrakcje turystyczne , zabytki, walory przyrodnicze i historyczno-krajobrazowe.

Ponadto liczne szlaki , wycieczkowe, rowerowe i piesze.

Dojazd jest drogą publiczną - droga gminna.

Odległość od Poznania Centrum : 30km

Tarnowo Podgórne 10km

Kaźmierz 9km . Doskonały i szybki dojazd do Poznania, drogą krajową 92

oraz dojazd do zjazdu na autostradę A2.

Media- pełne uzbrojenie.. Więcej informacji udzielam telefonicznie. Oferta godna polecenia.

Kontakt. Ireneusz Molenda tel. 665-55-44-15

(Odpowiedzialność zawodowa licencja nr 2554)

Zapewniamy bezpieczeństwo transakcji oraz kompleksową obsługę kredytową.

Zdjęcia nieruchomości

Lokalizacja nieruchomości

Kupując z pośrednikiem: kupujesz bezpiecznie z ubezpieczeniem OC od

transakcji.

SERDECZNIE ZAPRASZAM NA PREZENTACJE! .

Dodatkowe informacje o transakcji udzielamy przez telefon 665 554 415

Oferta Realizowana Przez:

Ireneusz Molenda Nieruchomości

Żegockiego 11/ 5, 61-693 Poznań

Współpracujemy z:

-Geodetami

-Doświadczonym biurem doradztwa kredytowego (usługa dla Państwa jest

bezpłatna)

-Kancelarią notarialną, która dla naszych klientów udziela zniżek.

Agent prowadzący Ireneusz Molenda

- Zapewniamy bezpieczeństwo transakcji oraz obsługę kredytową.

- Powyższy opis ma charakter informacyjny i nie stanowi oferty w rozumieniu

przepisów kodeksu cywilnego.

- Informacje umieszczone w ofercie przekazane są przez właścicieli

nieruchomości i mogą ulegać zmianom.

- Staramy się aby wszystkie oferty odpowiadały stanowi rzeczywistemu.

Typ działki
budowlana


Ireneusz Molenda
Agent prowadzący
Imię Nazwisko Ireneusz Molenda
Telefon kom. +48 665 554 415

Napisz do naszego agenta